Under Offer

Chiltern Close

Washington, Tyne & Wear, United Kingdom
REF: NE38 0PE
£120,000
3 Beds
2 Baths

Property Details

Tenure: freehold

Keyhole Residential are delighted to welcome to the sale market this well presented three bedroom terrace home situated in the sought after location of Chiltern Close, Lambton, Washington. 

Brought to the market with the benefit of no upper chain this spacious home benefits from two reception rooms, a utility room/downstairs WC, enclosed front and rear gardens and three generous sized bedrooms. 

Chiltern Close is located in a popular area of Lambton due to it's close proximity to the Galleries shopping centre and it's excellent direct bus links to Newcastle, Sunderland and Durham. Additionally the property is also in the catchment area for several well regarded schools. Viewing therefore comes highly recommended to fully appreciate the property on offer.


Full Description 

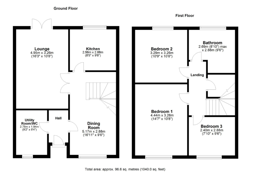
Entrance Hallway 
Double glazed front door, vinyl flooring. 

Utility Room/Downstairs WC 
Double glazed window, low level WC, vinyl flooring, part tiled walls. 

Second Reception Room 
Double glazed window, coving, radiator, understairs storage cupboard, stairs leading to first floor, laminate flooring.
(Room Size: 5.17m x 2.88m) 

Lounge 
Double glazed French doors leading to rear garden, coving, two radiators, laminate flooring. 
(Room Size: 4.95m x 3.26m)

Kitchen 
Double glazed window, fitted wall and base units, roll top work surfaces, stainless steel sink unit with mixer tap, electric cooker point with extractor hood, plumbed for washing machine, radiator, part tiled walls, coving, vinyl flooring. 
(Room Size: 2.88m x 2.56m)

First Floor Landing 
Two storage cupboards, loft access, carpet flooring. 

Bedroom One
Double glazed window, radiator, coving, carpet flooring. 
(Room Size: 

Bedroom Two 
Double glazed window, radiator, coving, carpet flooring. 
(Room Size: 

Bedroom Three 
Double glazed window, radiator, coving, carpet flooring. 
(Room Size: 

Bathroom 
Double glazed window, radiator, low level WC, pedestal wash hand basin, bath with shower over, fully tiled walls, vinyl flooring. 

Enclosed Rear Garden 
Paved garden. 

Front Garden 
Enclosed front garden, gated access. 

On Street Parking Available 

Freehold Property 
EPC Rating: C
Council Tax Band: A

Property Features

  • Close to Schools
  • Three Bedrooms
  • Utility
  • No Upper Chain
  • Spacious Home
  • Sought After Location
  • Downstairs WC
  • Low Maintenance Rear Garden
img

This property is marketed by

Keyhole Residential

info@keyholeresidential.co.uk

0191 447 7887